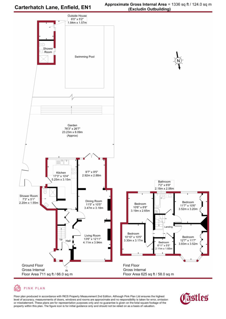
Carterhatch Lane, Enfield, EN1
£2750 per monthProperty Description
- 4 Bedrooms
- 2 Bathrooms
- 2 Receptions
Offered to the market is this spacious, extended semi-detached family home, providing ample living space across two well-designed floors. Perfectly located for families, the property is within walking distance of the highly-regarded Worcesters Primary School and other top-rated local education options. The ground floor begins with a practical front porch that opens into two bright living rooms, both finished with stylish shutter blinds and gas fireplaces. To the rear, a separate dining room features French doors that lead directly to the garden, creating a great flow for indoor-outdoor living. The heart of the home is the extended kitchen, which features a wide range of storage units and stunning quartz-style worktops. This floor also includes the added convenience of a downstairs cloakroom with a built-in shower unit. Upstairs, a large landing leads to four generous double bedrooms, two of which benefit from fitted wardrobe space. In addition to the bedrooms, there is a dedicated study room which is ideal for those working from home. The family bathroom is fitted with a complete four-piece suite. Outside, the front of the property provides off-street parking. The rear garden is beautifully landscaped for entertaining, offering a large paved patio and mature shrubbery. A path leads down to the rear of the garden where you will find the standout feature of a private, heated swimming pool.
Additional Information
- 4 Bedroom House
- 2 Living Rooms
- Dining Room
- Ground Floor Shower Room
- 1st Floor Bathroom
- Garden
- Swimming Pool
- Off Street Parking
- Available March
- Council Tax Band: F
Floorplans
Property Location
Nearest Train Stations
Nearest Airports
- London City Airport (LCY)
- London Heathrow Airport (LHR)
- London Luton Airport (LTN)

