Jansons Road, London
£540,000Interested in this Property?
Why not get in touch with our Tottenham office?
| Stamp Duty on Property | |
|---|---|
| Purchase Price | £540,000 |
| Stamp Duty (First Time Buyer) | £5,750 |
| Stamp Duty (Not First Time Buyer)* | £14,500 |
*Additional stamp duty is applicable on buy-to-let investments and second homes
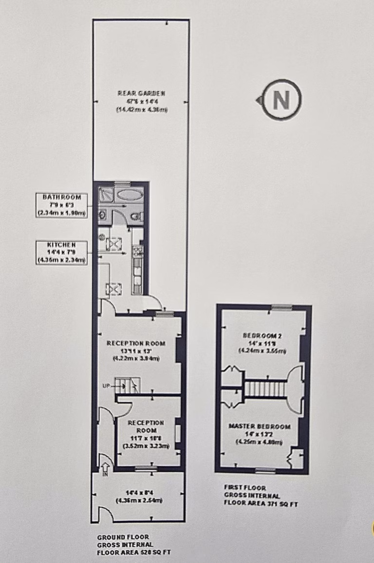
Property Description
- 2 Bedrooms
- 1 Bathrooms
- 2 Receptions
- Freehold
Located in a highly sought-after area of N15, this two-bedroom house offers a fantastic opportunity for those seeking to create a personalized living space. Located on a quiet street just off Philip Lane, the property provides ample scope for reconfiguration or updates to suit your style.
From the kitchen, you can access a spacious, paved garden with a fence for added privacy — perfect for outdoor entertaining or relaxing in your private outdoor space.
Upstairs, the first floor features two generous double bedrooms, both in need of some refreshing to unlock their full potential. There is also a family bathroom, along with stairs leading up to an additional loft room, which offers further possibilities for renovation, storage, or a home office.
The property is conveniently situated less than a ten-minute walk from Seven Sisters Station, providing direct connections to King’s Cross, Central London, and the City. The area has become an increasingly popular hotspot for young professionals and families alike. Highlights include the award-winning Downhills Park, with its community café and rose garden, as well as nearby dining options such as The Palm and True Craft.
While the house requires some updating, it presents an excellent opportunity for buyers looking to tailor a home to their tastes and needs.
Additional Information
- Great Price
- Two Double bedrooms
- Two Reception Romms
- Close to Seven Sisters
- Vibrant area
- Loft Annex
- Garden
- In need of some love
- 891 Sq Feet
Floorplans
Property Location
Nearest Train Stations
Nearest Airports
- London City Airport (LCY)
- London Heathrow Airport (LHR)
- London Luton Airport (LTN)
