Russell Avenue, N22
Asking Price £725,000Interested in this Property?
Why not get in touch with our Palmers Green office?
| Stamp Duty on Property | |
|---|---|
| Purchase Price | £725,000 |
| Stamp Duty (First Time Buyer) | £23,750 |
| Stamp Duty (Not First Time Buyer)* | £23,750 |
*Additional stamp duty is applicable on buy-to-let investments and second homes
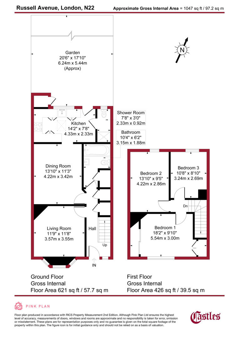
Property Description
- 3 Bedrooms
- 2 Bathrooms
- 2 Receptions
- Freehold
Nestled on a sought-after residential street within the heart of the Noel Park Conservation Area, this beautifully presented three-bedroom home, being offered chain free, seamlessly combines period elegance with refined contemporary living.
The ground floor features a bright and well-proportioned reception and dining room, designed to maximise natural light and create a stylish yet welcoming atmosphere, ideal for both everyday living and entertaining. To the rear, a beautifully crafted bespoke kitchen forms the heart of the home, finished to an exceptional standard and offering excellent style and functionality. This level is further enhanced by a guest WC and shower, along with a modern family bathroom.
A standout feature of the property is the private rear garden, providing an ideal space for al fresco dining, entertaining, or relaxed outdoor living.
Upstairs, the property offers three well-appointed bedrooms, each finished with a calm, contemporary feel.
Russell Avenue is ideally positioned for an exceptional North London lifestyle. Wood Green’s vibrant town centre is moments away, offering a wide range of cafés, restaurants, bars, and everyday amenities, along with the popular Westbury Gastro Pub and Wood Green Shopping City. Nearby green spaces include Russell Park, Belmont Park, Downhills Park, and Lordship Recreation Ground, all offering excellent leisure and recreation options.
Transport links are excellent, with Wood Green and Turnpike Lane Underground stations (Piccadilly Line) providing fast access to King’s Cross, the West End, and the City, along with numerous bus routes across North and Central London.
This exceptional home presents a rare opportunity to acquire a property that perfectly blends character, modern design, and convenience in one of North London’s most desirable locations.
Additional Information
- Prime three-bedroom home set within the highly regarded Noel Park Conservation Area
- Offered chain free, ensuring a smooth and uncomplicated purchase
- Bright and elegantly proportioned reception and dining space
- Exceptional bespoke kitchen finished with a refined contemporary design
- Convenient ground floor guest WC and shower room
- Stylish modern family bathroom
- Private rear garden, perfect for al fresco dining and entertaining
- Three well-appointed bedrooms with a calm, contemporary feel
- Outstanding transport links via Wood Green & Turnpike Lane (Piccadilly Line)
- Close to Wood Green amenities, independent cafés, restaurants, and expansive green open spaces
- Council Tax Band: D
Floorplans
Property Location
Nearest Train Stations
Nearest Airports
- London City Airport (LCY)
- London Heathrow Airport (LHR)
- London Luton Airport (LTN)

