Back
Somerset Road, London
Offers In Excess Of £429,950Interested in this Property?
Why not get in touch with our Edmonton office?
| Stamp Duty on Property | |
|---|---|
| Purchase Price | £429,950 |
| Stamp Duty (First Time Buyer) | £248 |
| Stamp Duty (Not First Time Buyer)* | £8,998 |
*Additional stamp duty is applicable on buy-to-let investments and second homes
Property Description
- 3 Bedrooms
- 1 Bathrooms
- 1 Receptions
- Freehold
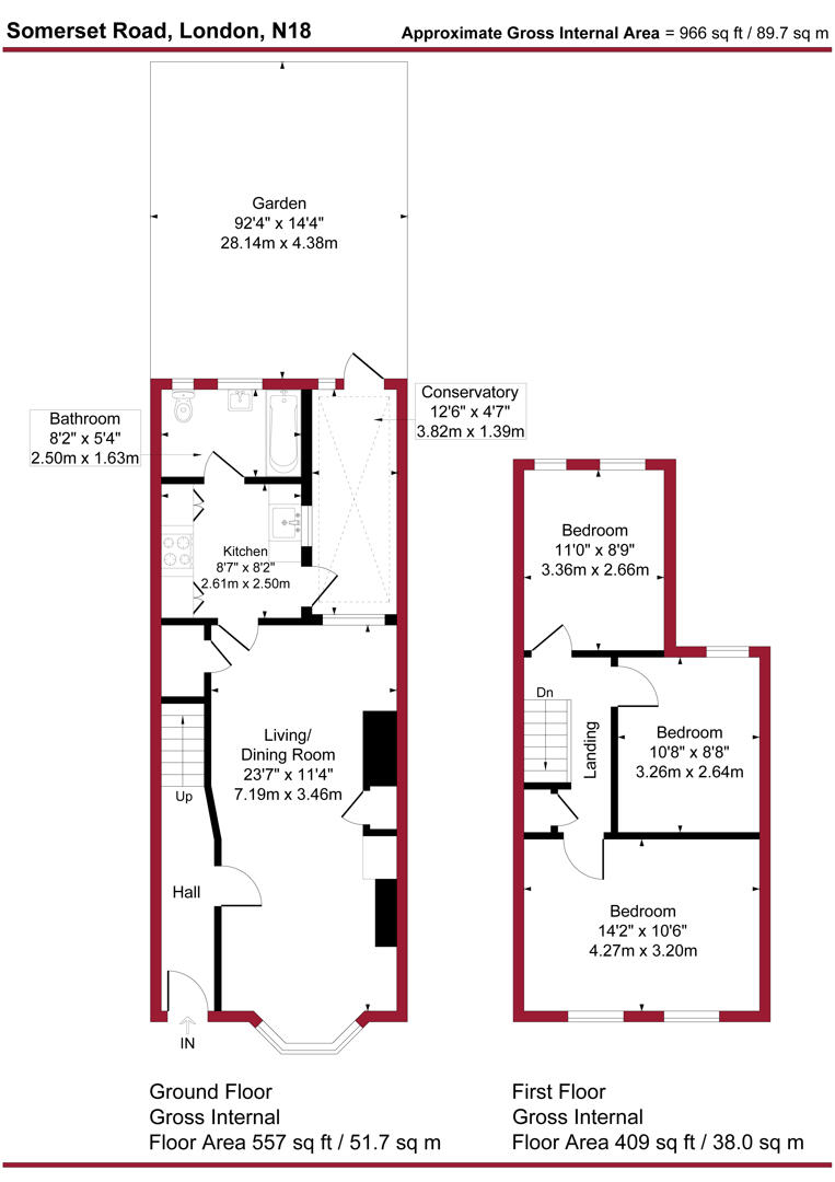
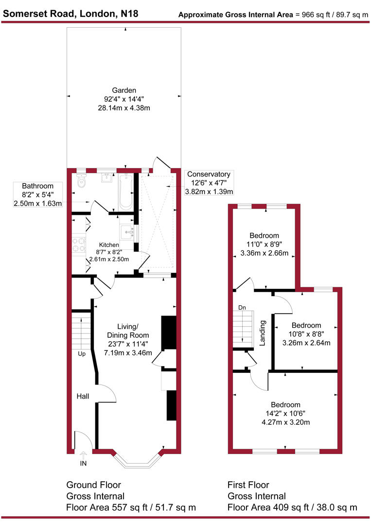
A three bedroom Victorian Terraced property situated within 1/4 mile of A406 Road links, Silver Street BR Station and North Middlesex Hospital. The property comprises of Reception, kitchen and bathroom to ground floor with a further three double bedrooms to first floor, it also has features to include, gas central heating, double glazing and 92ft rear garden.
Additional Information
- Three bedrooms
- Victorian Terraced
- 1/4 mile of the A406 road links
- Ground floor bathroom
- Gas central heating
- 92ft rear garden
- Double glazing
- Council Tax Band: C
Floorplans
Property Location
Nearest Train Stations
Nearest Airports
- London City Airport (LCY)
- London Heathrow Airport (LHR)
- London Luton Airport (LTN)

