Back
Sheldon Road, London
Offers In Excess Of £389,950Interested in this Property?
Why not get in touch with our Edmonton office?
| Stamp Duty on Property | |
|---|---|
| Purchase Price | £389,950 |
| Stamp Duty (First Time Buyer) | £0 |
| Stamp Duty (Not First Time Buyer)* | £6,998 |
*Additional stamp duty is applicable on buy-to-let investments and second homes
Property Description
- 2 Bedrooms
- 1 Bathrooms
- 1 Receptions
- Freehold
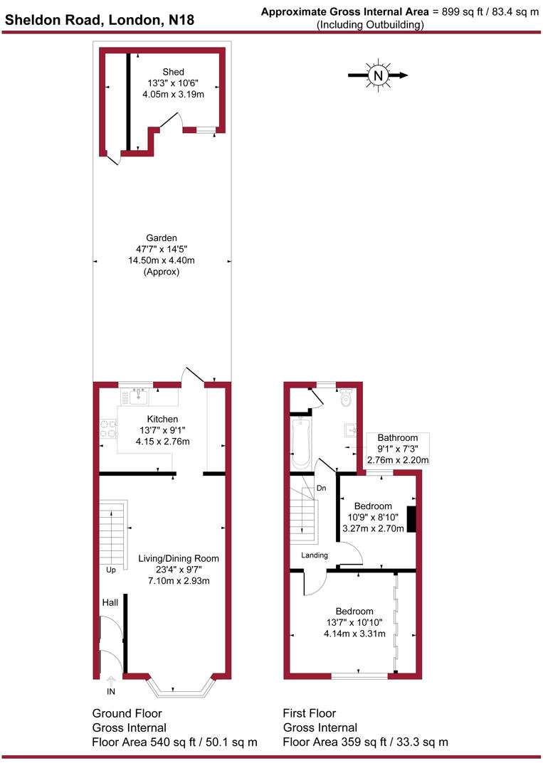
In our opinion a well presented two bedroom part extended Victorian terraced property situated on the popular Huxley Estate N18. The property comprises of Reception one and kitchen to ground floor with a further two bedrooms and bathroom to first floor. It also has features to include, 47ft rear garden with a shed, gas central heating, double glazing and can be offered for sale on a chain free basis.
Additional Information
- Two bedrooms
- Victorian Terraced
- On the popular Huxley Estate N18
- Can be offered chain free
- Gas central heating
- Double glazing
- 47ft rear garden
- Council Tax Band: C
Floorplans
Property Location
Nearest Train Stations
Nearest Airports
- London City Airport (LCY)
- London Heathrow Airport (LHR)
- London Luton Airport (LTN)
