Balmoral Road
Asking Price £445,000Interested in this Property?
Why not get in touch with our Enfield office?
| Stamp Duty on Property | |
|---|---|
| Purchase Price | £445,000 |
| Stamp Duty (First Time Buyer) | £1,000 |
| Stamp Duty (Not First Time Buyer)* | £9,750 |
*Additional stamp duty is applicable on buy-to-let investments and second homes
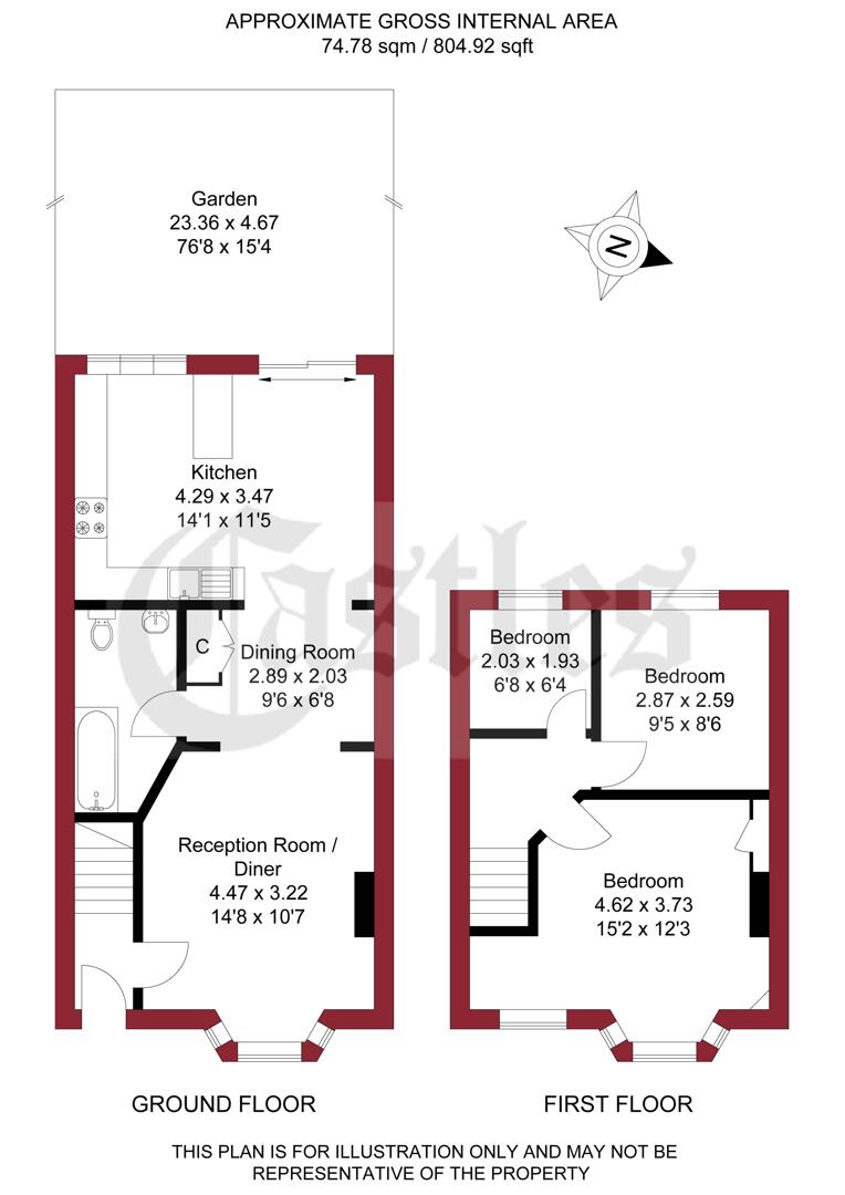
Property Description
- 3 Bedrooms
- 1 Bathrooms
- 2 Receptions
- Freehold
Castles Estate Agents are pleased to offer this chain-free three-bedroom terraced house, situated on a quiet residential road in Freezywater. The property is well located for Enfield Lock and Turkey Street stations, providing good transport links and access to local amenities.
The accommodation comprises a spacious lounge, an additional reception room, kitchen/diner, ground floor bathroom, two double bedrooms, and one single bedroom. Further benefits include double glazing, gas central heating, off-street parking, and a good-sized rear garden.
This property represents an excellent opportunity for investors or first-time buyers.
Additional Information
- Spacious lounge
- Additional reception room
- Kitchen/Diner
- Ground floor heating
- Off-street parking
- Good sized rear garden
- 3 bedrooms
- Council Tax Band: C
Floorplans
Property Location
Nearest Train Stations
Nearest Airports
- London City Airport (LCY)
- London Stansted Airport (STN)
- London Luton Airport (LTN)

