Back
Arthur Road, London
Offers In Excess Of £535,000Interested in this Property?
Why not get in touch with our Edmonton office?
| Stamp Duty on Property | |
|---|---|
| Purchase Price | £535,000 |
| Stamp Duty (First Time Buyer) | £5,500 |
| Stamp Duty (Not First Time Buyer)* | £14,250 |
*Additional stamp duty is applicable on buy-to-let investments and second homes
Property Description
- 4 Bedrooms
- 1 Bathrooms
- 3 Receptions
- Freehold
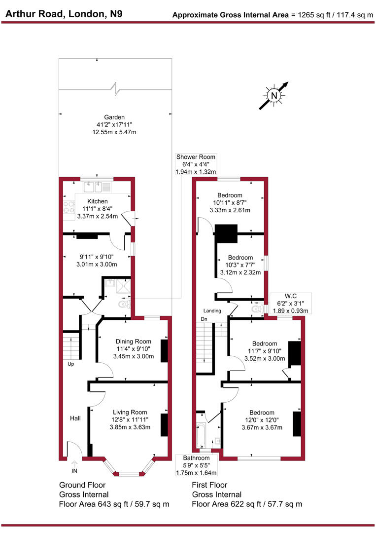
A four bedroom Victorian Terraced property situated within 1/2 mile of Edmonton Green with it’s shops and Transport links. The property comprises of Reception one and two, dining area, kitchen and shower room to ground floor with a further four bedrooms and WC to first floor. It also has features to include, 41ft rear garden, gas central heating, double glazing and is offered for sale on a chain free basis.
Additional Information
- Victorian Terraced
- Four Bedrooms
- Two Reception rooms
- WC on ground floor
- 1/2 mile of Edmonton Green
- 41ft rear garden
- Double glazing
- Gas central heating
- Chain free
- Council Tax Band: C
Floorplans
Property Location
Nearest Train Stations
Nearest Airports
- London City Airport (LCY)
- London Heathrow Airport (LHR)
- London Luton Airport (LTN)

