Back
Coolhurst Road, N8
Asking Price £1,350,000Interested in this Property?
Why not get in touch with our Crouch End office?
| Stamp Duty on Property | |
|---|---|
| Purchase Price | £1,350,000 |
| Stamp Duty (First Time Buyer) | £76,250 |
| Stamp Duty (Not First Time Buyer)* | £76,250 |
*Additional stamp duty is applicable on buy-to-let investments and second homes
Property Description
- 3 Bedrooms
- 2 Bathrooms
- 1 Receptions
- Share of Freehold
A stunning, three double-bedroom converted home with garden. Set within an imposing double- fronted period residence on a much-favoured turning on the Highgate periphery. Further comprising two en-suites, additional shower room, spacious living area incorporating reception onto kitchen/diner onto landscaped rear garden.
The property offers unique exceptional internal detailing to create a desired blend of character and contemporary features. Benefitting from off-street parking, part under-floor heating, utility area and garden studio. We highly recommend an early viewing.
Local Authority:Haringey
Council Tax band:E
Additional Information
- Stunning three double-bedroom converted home with garden
- Off-street parking. Garden studio
- Spacious living area incorporating reception onto kitchen/diner onto landscaped rear garden
- Two en-suites, additional shower room
- Part under floor heating and utility area
- Set within an imposing double fronted period residence
- Favoured turning on the Highgate periphery
- Council Tax Band: E
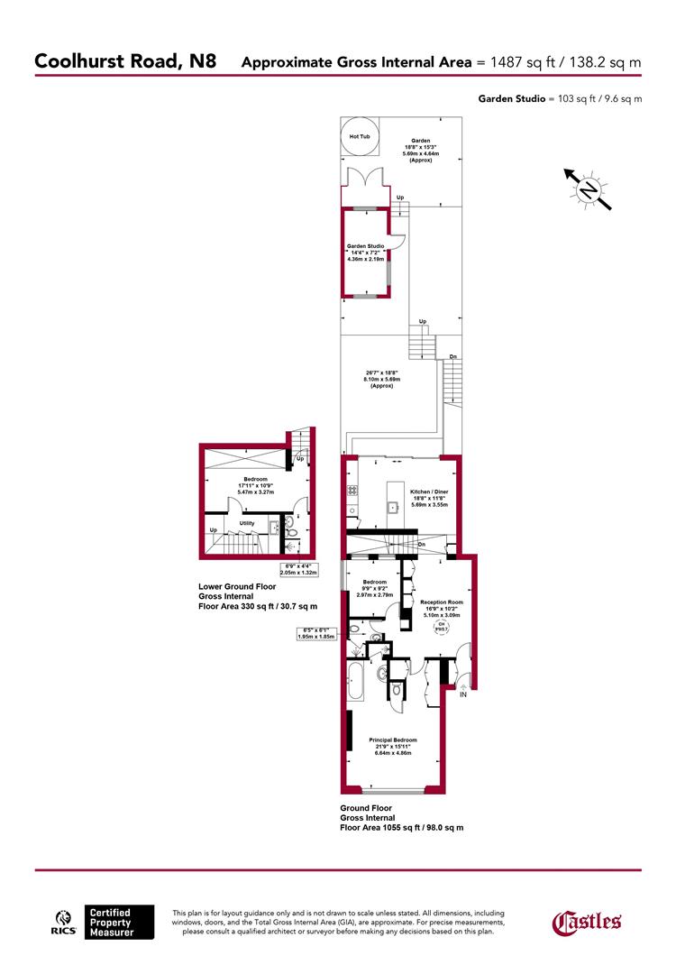
Floorplans
Property Location
Nearest Train Stations
Nearest Airports
- London City Airport (LCY)
- London Heathrow Airport (LHR)
- London Luton Airport (LTN)
