Pritchett Close, Enfield
Offers In Excess Of £450,000Interested in this Property?
Why not get in touch with our Enfield office?
| Stamp Duty on Property | |
|---|---|
| Purchase Price | £450,000 |
| Stamp Duty (First Time Buyer) | £1,250 |
| Stamp Duty (Not First Time Buyer)* | £10,000 |
*Additional stamp duty is applicable on buy-to-let investments and second homes
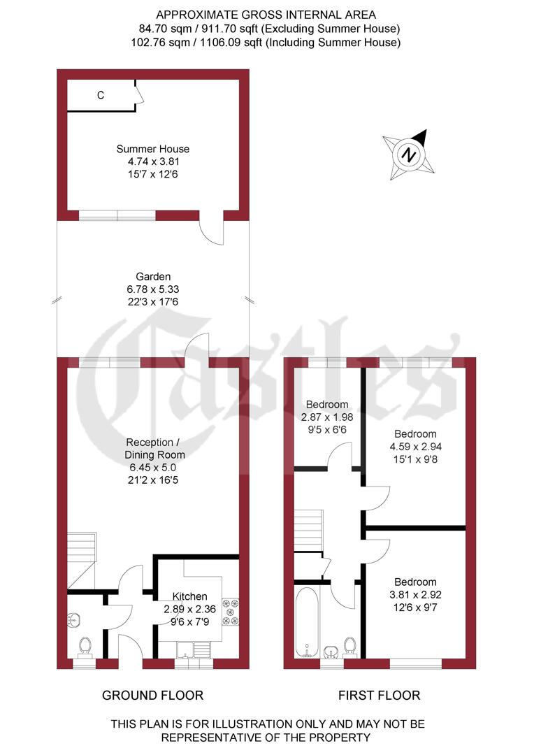
Property Description
- 3 Bedrooms
- 1 Bathrooms
- 1 Receptions
- Freehold
A well presented three-bedroom Freehold family home located in a quiet cul-de-sac within the sought after Enfield Island Village, just 1 mile from Enfield Lock Station and close to local shops, schools and the River Lea.
The property offers a bright and spacious living/dining room, fitted kitchen and ground floor WC. Upstairs are three well-proportioned bedrooms and a modern family bathroom.
Outside, the home benefits from a private rear garden with a versatile garden room, ideal as a home office, gym or studio, plus a garage en-bloc
Key features:-
3 bedroom Freehold house,
Quiet residential cul-de-sac,
Spacious living/dining room,
Private garden with garden office,
Garage en-bloc,
Gas central heating and double glazing,
Offered chain free.
Service Charge approx. £300 per year.
Additional Information
- Garage en bloc
- Gas central heating
- Double glazing
- Fitted kitchen
- Ground floor WC
- Spacious living room
- 3 bedrooms & 1st floor family bathroom
- Chain free sale
- Garden
- Useful outbuilding/garden room/Office
- Council Tax Band: D
Floorplans
Property Location
Nearest Train Stations
Nearest Airports
- London City Airport (LCY)
- London Stansted Airport (STN)
- London Luton Airport (LTN)

