Riverside Close, E5
Asking Price £325,000Interested in this Property?
Why not get in touch with our Hackney office?
| Stamp Duty on Property | |
|---|---|
| Purchase Price | £325,000 |
| Stamp Duty (First Time Buyer) | £0 |
| Stamp Duty (Not First Time Buyer)* | £3,750 |
*Additional stamp duty is applicable on buy-to-let investments and second homes
Property Description
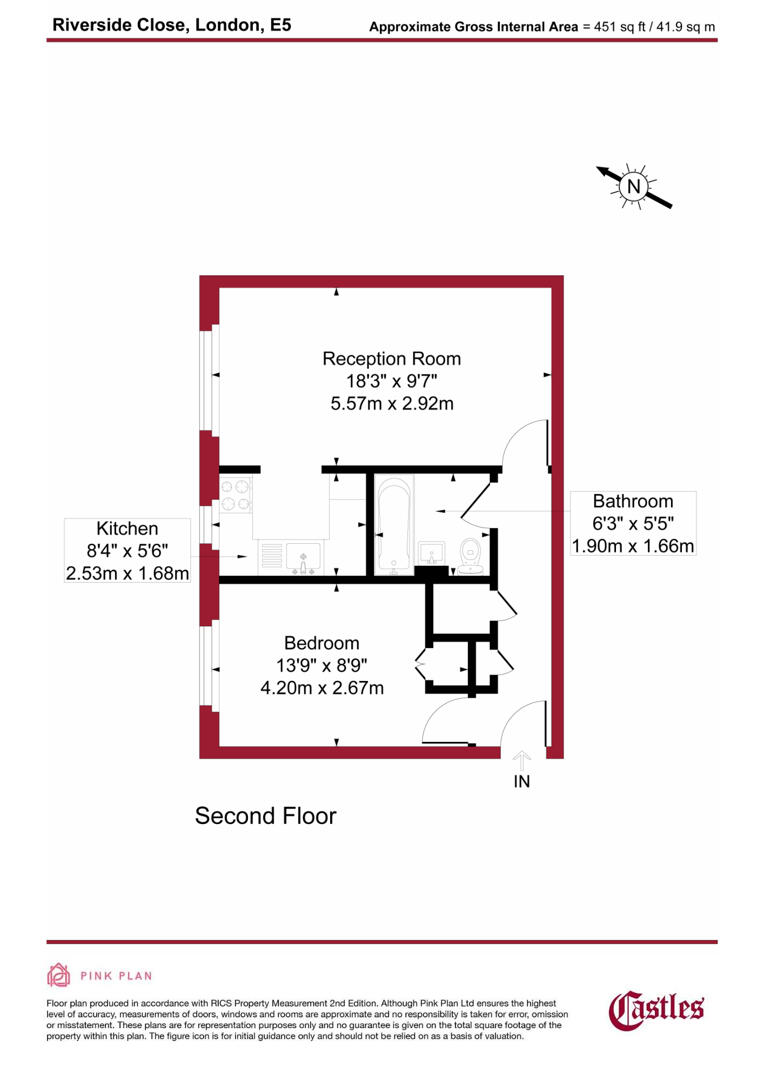
- 1 Bedrooms
- 1 Bathrooms
- 1 Receptions
- Leasehold
Castles Hackney are pleased to present this attractive one-bedroom, second-floor apartment, quietly positioned within a sought-after cul-de-sac development, offering an excellent balance of peaceful living and superb urban connectivity.
The apartment is well arranged and filled with natural light throughout. Accommodation comprises a generously sized reception room, ideal for both relaxing and entertaining, a separate fitted kitchen with ample storage and worktop space, and a well-appointed bathroom. The second-floor position affords a heightened sense of privacy and enjoys pleasant outlooks, including views towards the River Lea, creating a calm and appealing setting.
Further benefits include allocated parking and access to a beautifully maintained communal garden, providing a rare green retreat so close to the City.
The property is ideally located in the highly regarded Clapton E5 area, excellent transport links and an abundance of green space. Clapton Overground Station is within easy walking distance, offering fast and direct services into Liverpool Street, making it ideal for City professionals.
The area also boasts a variety of popular cafés, restaurants and eateries close by. Local favourites along Lower Clapton Road and Chatsworth Road include independent coffee shops, artisan bakeries, relaxed brunch spots and well-regarded pubs, creating a lively yet laid-back neighbourhood atmosphere.
The River Lea, Walthamstow Marshes, Millfields Park and Springfield Park are moments away, providing miles of scenic walking and cycling routes along the water and open green spaces.
This property represents an ideal opportunity for first-time buyers seeking a well-located home that combines tranquil surroundings, scenic river views, excellent transport links and a vibrant local lifestyle in one of Hackney’s most desirable postcodes.
Additional Information
- One-bedroom, second-floor flat
- Bright, spacious reception room
- Separate fitted kitchen
- Well-appointed bathroom
- Views towards River Lea
- Allocated parking space
- Communal garden access
- Close to Clapton Station
- Vibrant local food scene
- Council Tax Band: C
Floorplans
Property Location
Nearest Train Stations
Nearest Airports
- London City Airport (LCY)
- London Heathrow Airport (LHR)
- London Stansted Airport (STN)

