Pasteur Gardens, Edmonton, N18
Guide Price £500,000Interested in this Property?
Why not get in touch with our Palmers Green office?
| Stamp Duty on Property | |
|---|---|
| Purchase Price | £500,000 |
| Stamp Duty (First Time Buyer) | £3,750 |
| Stamp Duty (Not First Time Buyer)* | £12,500 |
*Additional stamp duty is applicable on buy-to-let investments and second homes
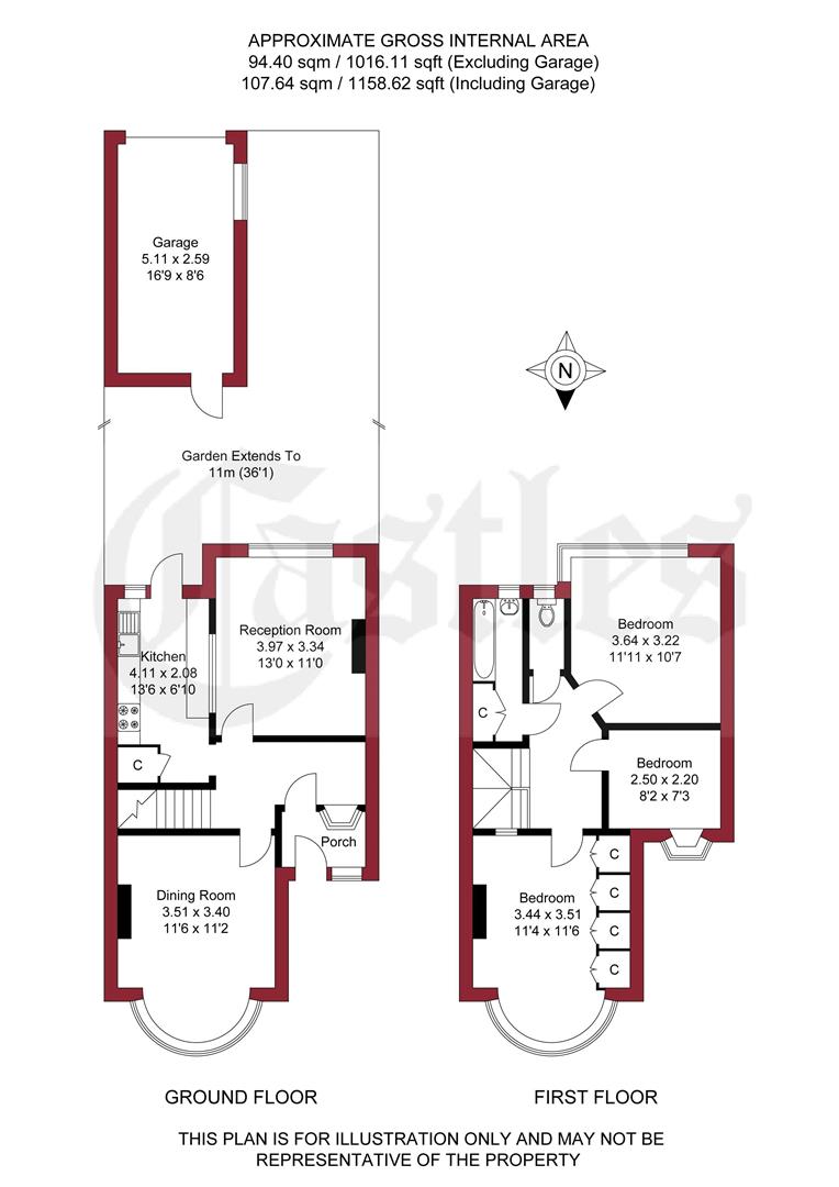
Property Description
- 3 Bedrooms
- 1 Bathrooms
- 2 Receptions
- Freehold
Guide Price £500,000-£525,000 Chain Free! Offering excellent potential for improvements is this three bedroom, Peter Dean style family home with the benefit of driveway, south facing garden and garage to rear. Boasting in excess of approx. 1,000 sqft of well proportioned living/entertaining space and comprising; inviting entrance hall, two reception rooms featuring parquet flooring, separate fitted kitchen, three bedrooms and bathroom with separate W.C. Positioned only moments away from the well regarded Oakthorpe primary school and local bus routes providing access to Wood Green shopping centre and tube station (Piccadilly line).
Additional Information
- Peter Dean Style Family Home
- Excellent Potential For Improvements
- Driveway
- Garage To Rear
- Two Reception Rooms
- South Facing Rear Garden
- Chain Free
- Council Tax Band: D
Floorplans
Property Location
Nearest Train Stations
Nearest Airports
- London City Airport (LCY)
- London Heathrow Airport (LHR)
- London Luton Airport (LTN)
