Back
Ecclesbourne Gardens, Palmers Green, N13
Guide Price £575,000Interested in this Property?
Why not get in touch with our Palmers Green office?
| Stamp Duty on Property | |
|---|---|
| Purchase Price | £575,000 |
| Stamp Duty (First Time Buyer) | £7,500 |
| Stamp Duty (Not First Time Buyer)* | £16,250 |
*Additional stamp duty is applicable on buy-to-let investments and second homes
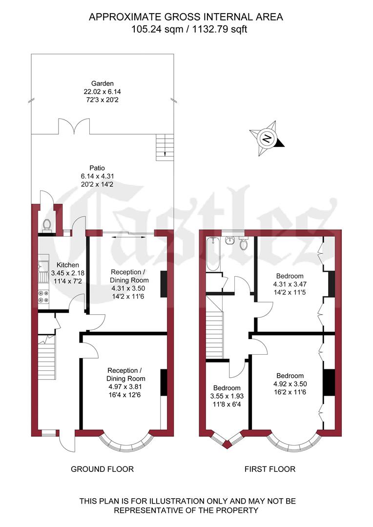
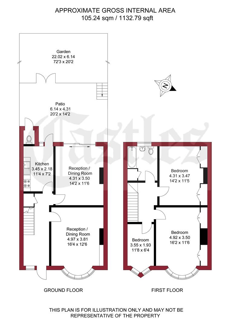
Property Description
- 3 Bedrooms
- 1 Bathrooms
- 2 Receptions
- Freehold
Guide price £575,000 – £600,000. Chain Free! Boasting 1,132 sqft (Approx) of well proportioned living space, is this three bedroom family home. Enjoying a large south facing rear garden featuring an excellent size raised patio. Internal accommodation further comprises; two reception rooms, separate kitchen and first floor bathroom. The property requires some modernisation, however, offers great potential for both improvements or to extend (S.T.P.P.)
Conveniently located only moments away from Green Lanes shops, restaurants, bus routes, Broomfield Park and Palmers Green mainline station into Moorgate.
Additional Information
- Terraced House
- Three Bedrooms
- Two Reception Rooms
- Large South Facing Rear Garden
- Excellent Potential For Improvements or To Extend (S.T.P.P.)
- Located Moments away From Green Lanes Transport & Amenities
- Chain Free
- Council Tax Band: E
Floorplans
Property Location
Nearest Train Stations
Nearest Airports
- London City Airport (LCY)
- London Heathrow Airport (LHR)
- London Luton Airport (LTN)
