Lyndhurst Road, London, N22
Asking Price £585,000Interested in this Property?
Why not get in touch with our Palmers Green office?
| Stamp Duty on Property | |
|---|---|
| Purchase Price | £585,000 |
| Stamp Duty (First Time Buyer) | £8,000 |
| Stamp Duty (Not First Time Buyer)* | £16,750 |
*Additional stamp duty is applicable on buy-to-let investments and second homes
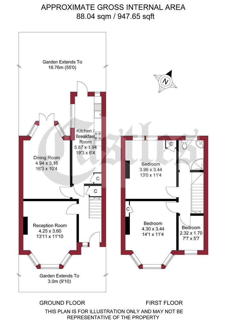
Property Description
- 3 Bedrooms
- 1 Bathrooms
- 2 Receptions
- Freehold
A Fantastic Opportunity to Acquire a Period Family Home!
This charming three-bedroom period property presents a unique opportunity to craft your dream home. Boasting generous living spaces and retaining some delightful period features, this residence offers the perfect blend of character and potential.
While the property is in good condition and shows well, it would benefit from some personal touches and modernisation. The home also offers exciting scope for further enhancement or expansion into the loft space (subject to planning permission), making it an ideal canvas for your creative vision.
The current accommodation includes two spacious reception rooms, an extended kitchen, and a first-floor family bathroom, all arranged to maximize comfort and functionality.
Perfectly positioned just off the sought-after Green Lanes, you’ll enjoy an array of independent retailers, popular restaurants, and cozy coffee shops right on your doorstep. Excellent transport links include local bus services providing easy access to Wood Green Station and Shopping Centre.
Agent Note: The property was subject to minor subsidence claim in 2024 affecting only the kitchen extension, caused by trees in the garden. All necessary remedial work has been completed, and a Certificate of Structural Adequacy is available, confirming the issue has been fully resolved.
Additional Information
- Period Family Home
- Original Features
- Three Bedrooms
- Two Reception Rooms
- Separate Fitted Kitchen
- Good Size Rear Garden
- Potential To Extend (S.T.P.P.)
- Council Tax Band: E
Floorplans
Property Location
Nearest Train Stations
Nearest Airports
- London City Airport (LCY)
- London Heathrow Airport (LHR)
- London Luton Airport (LTN)
