Butfield House, Stevens Avenue, London
Asking Price £485,000Interested in this Property?
Why not get in touch with our Hackney office?
| Stamp Duty on Property | |
|---|---|
| Purchase Price | £485,000 |
| Stamp Duty (First Time Buyer) | £3,000 |
| Stamp Duty (Not First Time Buyer)* | £11,750 |
*Additional stamp duty is applicable on buy-to-let investments and second homes
Property Description
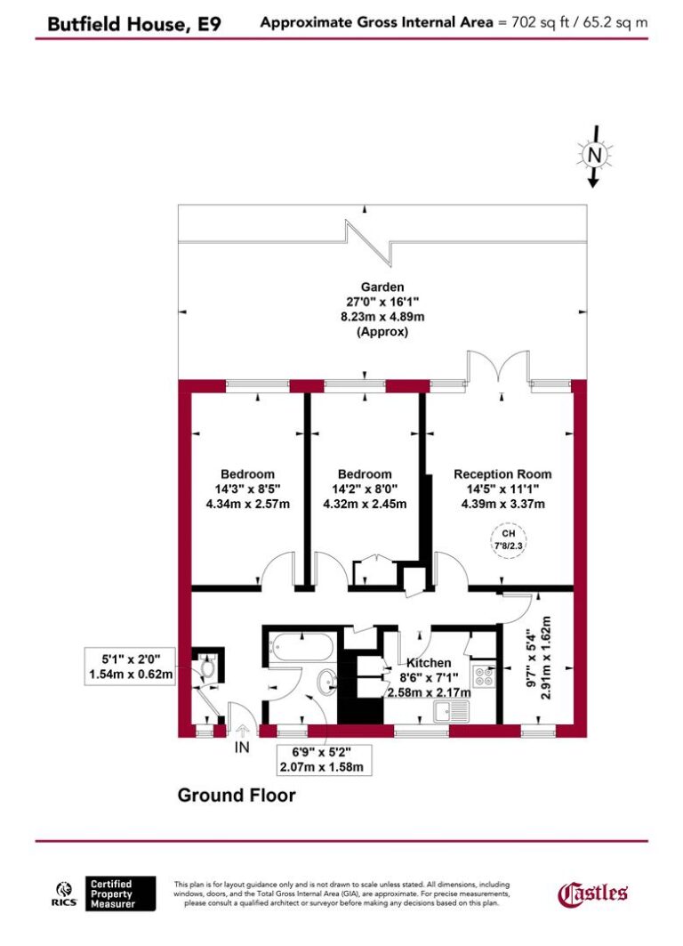
- 3 Bedrooms
- 1 Bathrooms
- 1 Receptions
- Leasehold
Castles Hackney are pleased to present this exceptionally well-proportioned three-bedroom ground floor flat set within the desirable E9 postcode. Accessed via its own private entrance, the property offers a rare blend of space, privacy, and quality. Internally, the home comprises three double bedrooms, a separate bespoke fully fitted kitchen sits opposite a generously sized reception room, which leads directly onto a substantial private south facing garden, perfect for entertaining, or simply enjoying your own outdoor retreat in the heart of Hackney. The flat has been maintained to an excellent standard throughout. Quietly positioned on the ground floor and tucked away on a cul-de-sac with minimal through traffic, this outstanding property is being offered to the market chain free.
The location is equally impressive. Just a short stroll from the vibrant hubs of Mare Street and Well Street, residents will find a rich mix of independent cafés, popular restaurants, bars, and local shops right on their doorstep. The green open spaces of Victoria Park and London Fields are also nearby, providing welcome respite from city life. For commuters, Hackney Central and Homerton Overground stations are both within easy walking distance, offering quick and convenient links across London, while numerous bus routes serve the area. The property also enjoys picturesque views over the beautifully maintained grounds of St Luke’s Church, Homerton, enhancing the tranquil setting. With a wealth of amenities, excellent transport connections, and a thriving community atmosphere, this is an ideal home for those looking to enjoy the best of East London living.
Vendor Is Open To Sensible Offers.
Additional Information
- Three double bedrooms
- Ground floor flat
- Private entrance
- Separate fully fitted kitchen
- Generously sized reception room
- Large private south-facing garden
- Vendor Is Open To Sensible Offers
- Being offered chain free
- Close to Mare Street and Well Street, near vibrant cafés, shops, and restaurants
- Excellent transport links, short walk to Hackney Central & Homerton stations, plus multiple bus routes
- Council Tax Band: B
Floorplans
Property Location
Nearest Train Stations
Nearest Airports
- London City Airport (LCY)
- London Heathrow Airport (LHR)
- London Stansted Airport (STN)

