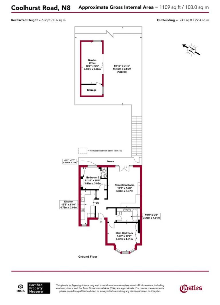
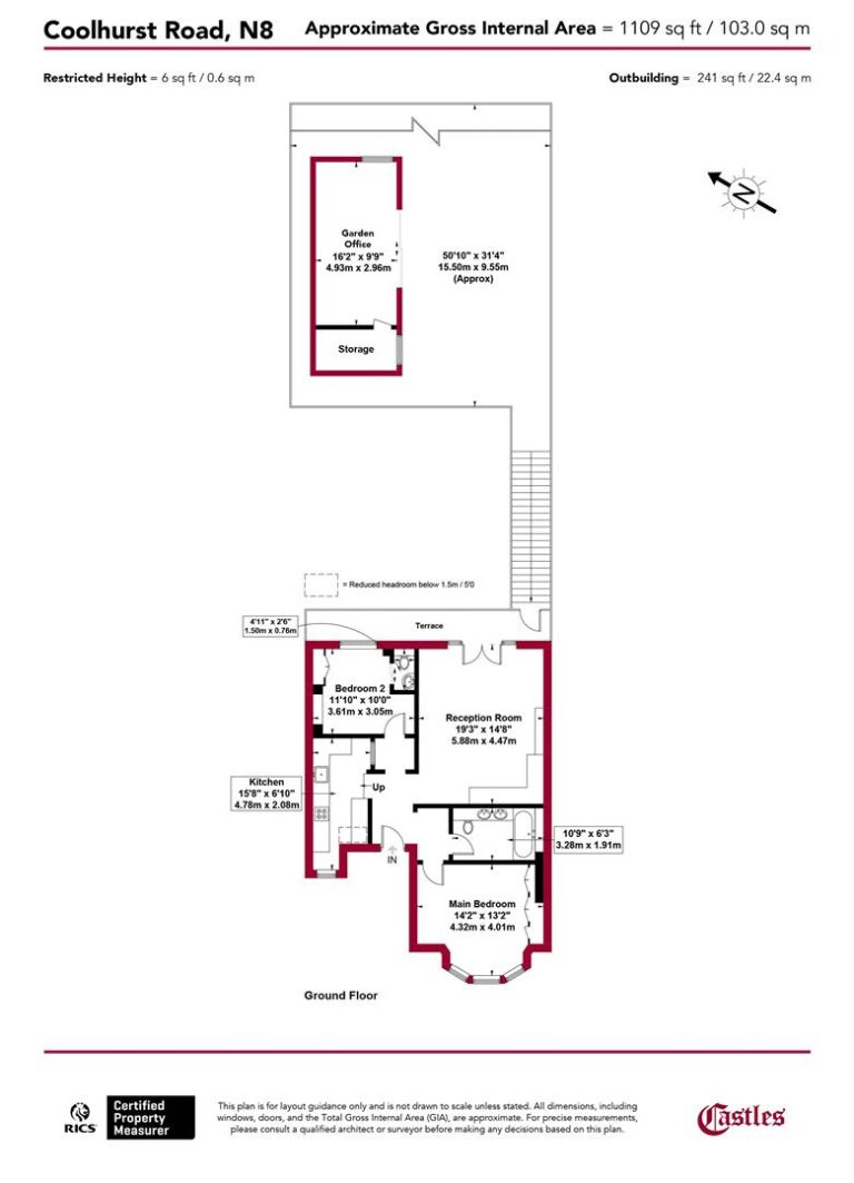
Coolhurst Road, N8
Asking Price £1,000,000Interested in this Property?
Why not get in touch with our Crouch End office?
| Stamp Duty on Property | |
|---|---|
| Purchase Price | £1,000,000 |
| Stamp Duty (First Time Buyer) | £41,250 |
| Stamp Duty (Not First Time Buyer)* | £41,250 |
*Additional stamp duty is applicable on buy-to-let investments and second homes
Property Description
- 2 Bedrooms
- 1 Bathrooms
- 1 Receptions
- Share of Freehold
A Truly Stunning Two-Bedroom Garden Conversion with garden studio on the Highgate Periphery
An exceptional opportunity to acquire this beautifully presented, two double-bedroom garden conversion, set on the ground floor of an imposing period residence. Perfectly positioned on a premier road near the Highgate-Crouch End border, the property is just a short walk from the highly sought-after Coleridge Primary School and the prestigious Coolhurst Tennis Club.
Offering an abundance of natural light and generous proportions throughout, the accommodation comprises a spacious reception room, a contemporary kitchen, family bathroom, additional w.c, and a principal bedroom. French doors lead to a private balcony that opens, onto a beautifully landscaped 50ft private garden, complete with a versatile garden studio – ideal as a home office, gym, or creative space.
This home effortlessly combines character features with stylish modern finishes, creating a perfect blend of period charm and contemporary living.
Ideally located equidistant from Crouch End’s vibrant Historic Broadway and Highgate Underground Station (Northern Line), offering excellent transport links and access to an array of boutique shops, cafes, and green spaces.
Local Authority:Haringey
Council Tax band:C
Lease: 88 years (125 years from 25/3/1988)
Current Service/Maintenance Charge/Building Insurance contribution: £573.92 per annum
Ground Rent: Not applicable
Nb. The Service Charge, Ground Rent and Share of Freehold information stated has been confirmed by our vendor
Additional Information
- Two double-bedroom garden conversion
- Ground floor of period residence
- French doors lead to private balcony that opens, onto 50ft private garden
- Versatile garden studio - ideal as a home office, gym, or creative space
- Spacious reception room, contemporary kitchen
- Family bathroom, additional w.c, and principal bedroom
- Premier road near the Highgate-Crouch End border
- Short walk from Coleridge Primary School and Coolhurst Tennis Club
- Equidistant from Crouch End’s Historic Broadway and Highgate Underground Station (Northern Line)
- Council Tax Band: C
Floorplans
Property Location
Nearest Train Stations
Nearest Airports
- London City Airport (LCY)
- London Heathrow Airport (LHR)
- London Luton Airport (LTN)
