Back
Rathcoole Gardens, N8
Asking Price £1,350,000Interested in this Property?
Why not get in touch with our Crouch End office?
| Stamp Duty on Property | |
|---|---|
| Purchase Price | £1,350,000 |
| Stamp Duty (First Time Buyer) | £76,250 |
| Stamp Duty (Not First Time Buyer)* | £76,250 |
*Additional stamp duty is applicable on buy-to-let investments and second homes
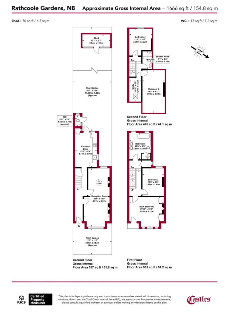
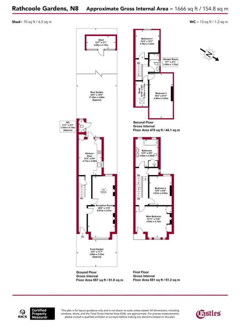
Property Description
- 4 Bedrooms
- 2 Bathrooms
- 2 Receptions
- Freehold
A charming four-bedroom, Victorian home, ideally positioned for Hornsey Station, Stationers Park, Crouch End Broadway and both Rokesly and Weston Park Schools.
Further comprising through-reception, kitchen/diner, study, shower room, bathroom, rear private garden with large shed and external w.c.
An early viewing is highly recommended.
Local Authority:Haringey
Council Tax band:F
Additional Information
- Four-bedroom Victorian home
- Rear private garden with large shed and external w.c.
- Through-reception, kitchen/diner, study
- Shower room, bathroom
- Ideally Positioned for Hornsey Station, Stationers Park and Crouch End Broadway
- Rokesly and Weston Park Schools nearby
- Council Tax Band: F
Floorplans
Property Location
Nearest Train Stations
Nearest Airports
- London City Airport (LCY)
- London Heathrow Airport (LHR)
- London Luton Airport (LTN)
