Back
Causeyware Road, Edmonton
Offers In Excess Of £409,950Interested in this Property?
Why not get in touch with our Edmonton office?
| Stamp Duty on Property | |
|---|---|
| Purchase Price | £409,950 |
| Stamp Duty (First Time Buyer) | £0 |
| Stamp Duty (Not First Time Buyer)* | £7,998 |
*Additional stamp duty is applicable on buy-to-let investments and second homes
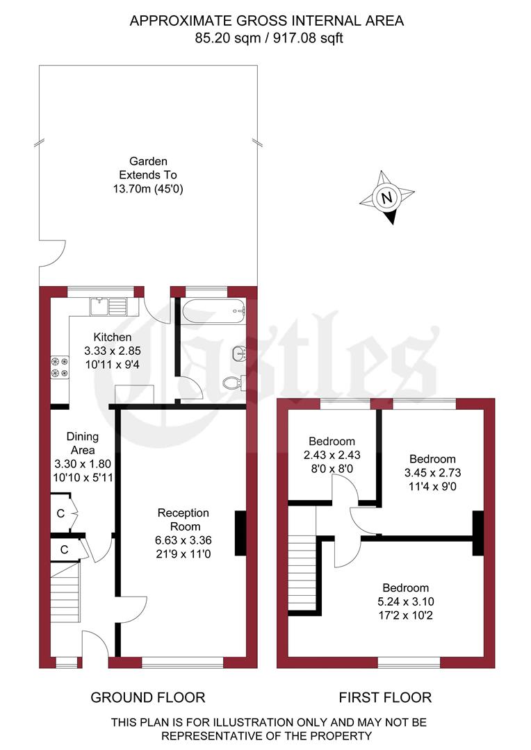
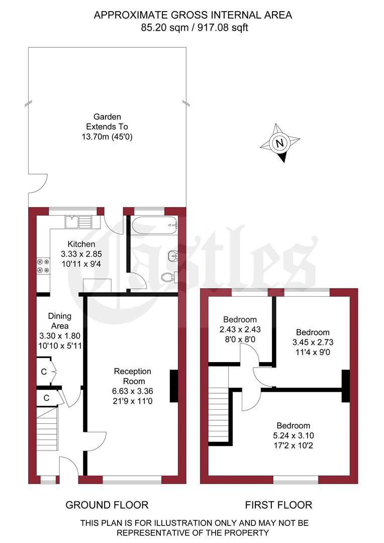
Property Description
- 3 Bedrooms
- 1 Bathrooms
- 1 Receptions
- Freehold
In our opinion a well presented Three bedroom end of Terrace extended property within 1/2 mile of Edmonton Green. The property comprises of Reception, L shape kitchen/Diner and bathroom to ground floor with a further three bedrooms to first floor. The property also has features to include, 45ft rear garden, gas central heating and double glazing.
Additional Information
- Three bedrooms
- Extended End of Terrace
- 1/2 mile to Edmonton Green
- Double glazing
- Gas central heating
- 45ft rear garden
- Council Tax Band: D
Floorplans
Property Location
Nearest Train Stations
Nearest Airports
- London City Airport (LCY)
- London Heathrow Airport (LHR)
- London Stansted Airport (STN)

