Back
Raynham Avenue, Edmonton
Offers In Excess Of £399,950Interested in this Property?
Why not get in touch with our Edmonton office?
| Stamp Duty on Property | |
|---|---|
| Purchase Price | £399,950 |
| Stamp Duty (First Time Buyer) | £0 |
| Stamp Duty (Not First Time Buyer)* | £7,498 |
*Additional stamp duty is applicable on buy-to-let investments and second homes
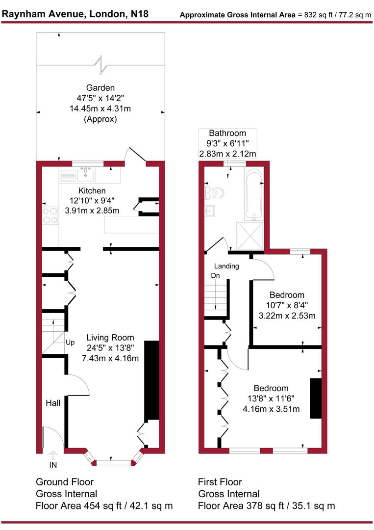
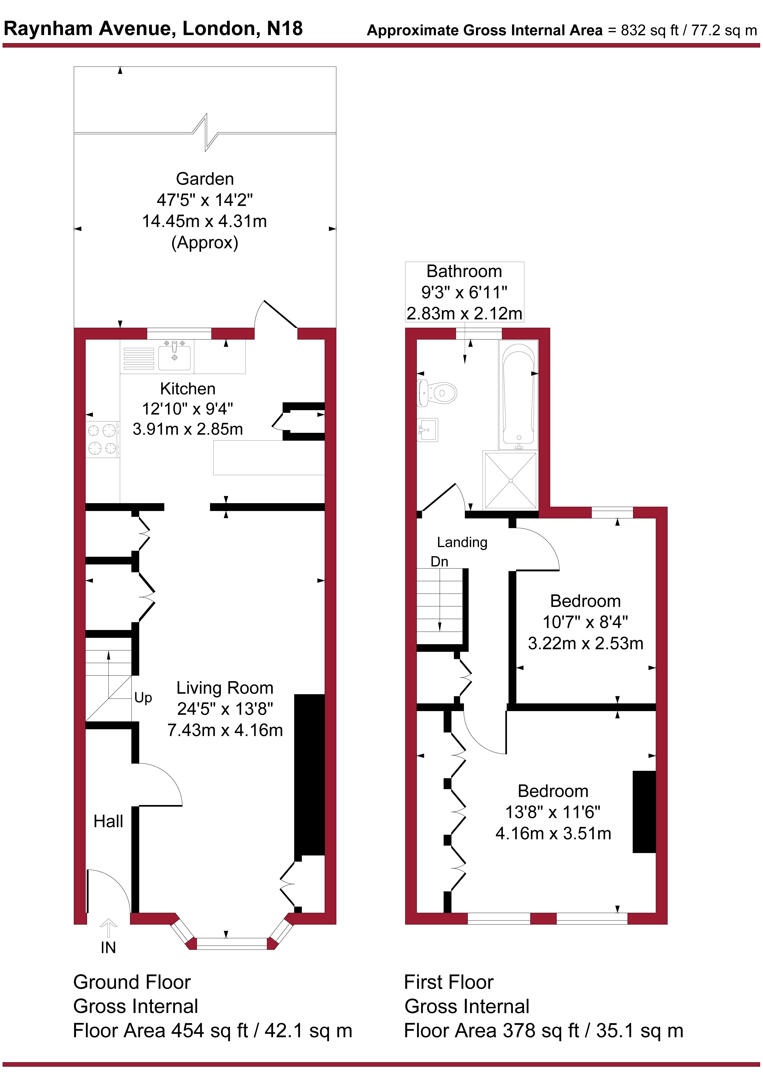
Property Description
- 2 Bedrooms
- 1 Bathrooms
- 1 Receptions
- Freehold
A two bedroom Victorian Terraced property situated within a 1/4 mile of Fore Street with it’s shops and transport links. The property comprises of Reception one and kitchen to ground floor with a further two bedrooms and bathroom. It also has features to include, 47ft rear garden, gas central heating and is offered for sale on a chain free basis.
Additional Information
- Two bedrooms
- Victorian Terraced property
- Local Transport links
- 47 Rear garden
- Gas central heating
- Chain free
- Council Tax Band: C
Floorplans
Property Location
Nearest Train Stations
Nearest Airports
- London City Airport (LCY)
- London Heathrow Airport (LHR)
- London Luton Airport (LTN)

