Back
Baker Street, Enfield
Asking Price £575,000Interested in this Property?
Why not get in touch with our Enfield office?
| Stamp Duty on Property | |
|---|---|
| Purchase Price | £575,000 |
| Stamp Duty (First Time Buyer) | £7,500 |
| Stamp Duty (Not First Time Buyer)* | £16,250 |
*Additional stamp duty is applicable on buy-to-let investments and second homes
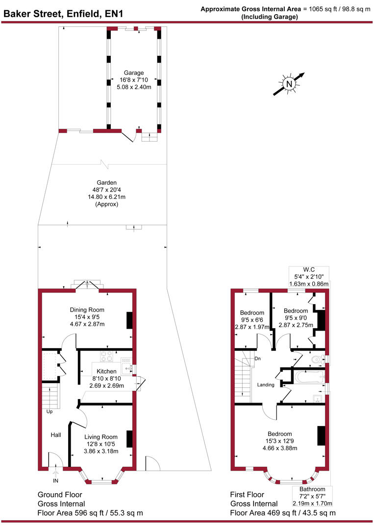
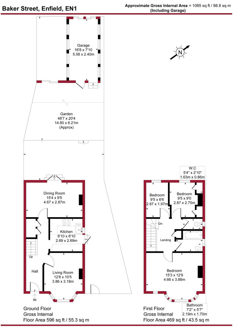
Property Description
- 3 Bedrooms
- 1 Bathrooms
- Freehold
A spacious 3 bedroom semi-detached house located on the slip
road at the junction of Baker Street and Clay Hill, close to Forty
Hall. The property offers fantastic potential and is offered for
sale on a chain free basis. Features include: front off-street
parking for 2 cars, double glazing, gas central heating (untested),
2 separate reception rooms, 9′ fitted kitchen, 1st floor bathroom,
approx 50′ rear garden, garage to rear via service road.
Additional Information
- 3 spacious bedrooms
- Semi-detached house
- Located on Baker Street
- Close to Enfield amenities
- Easy access to transport
- Ideal family home
- Viewing recommended
- Off Street Parking
- Council Tax Band: E
Floorplans
Property Location
Nearest Train Stations
Nearest Airports
- London City Airport (LCY)
- London Luton Airport (LTN)
- London Heathrow Airport (LHR)

