Back
Lansbury Road, Enfield
Asking Price £255,000Interested in this Property?
Why not get in touch with our Enfield office?
| Stamp Duty on Property | |
|---|---|
| Purchase Price | £255,000 |
| Stamp Duty (First Time Buyer) | £0 |
| Stamp Duty (Not First Time Buyer)* | £250 |
*Additional stamp duty is applicable on buy-to-let investments and second homes
Property Description
- 2 Bedrooms
- 1 Bathrooms
- 1 Receptions
- Leasehold
Offered for sale this 1st floor two bedroom maisonette with own section of garden.
Located off The Sunny Road and within 0.5 miles of Brimsdown BR Station (serving London Liverpool Street Station).
The property does require some modernisation and is offered on chain free basis.
Features include: own front entrance, double glazing, newly fitted bathroom, kitchen, 2 bedrooms, own section of rear garden.
Additional Information
- 2 Bedrooms
- Own Front Entrance
- Newly Fitted Bathroom
- No Service Charge
- 90 years remaining on the lease
- Chain Free
- Council Tax Band: B
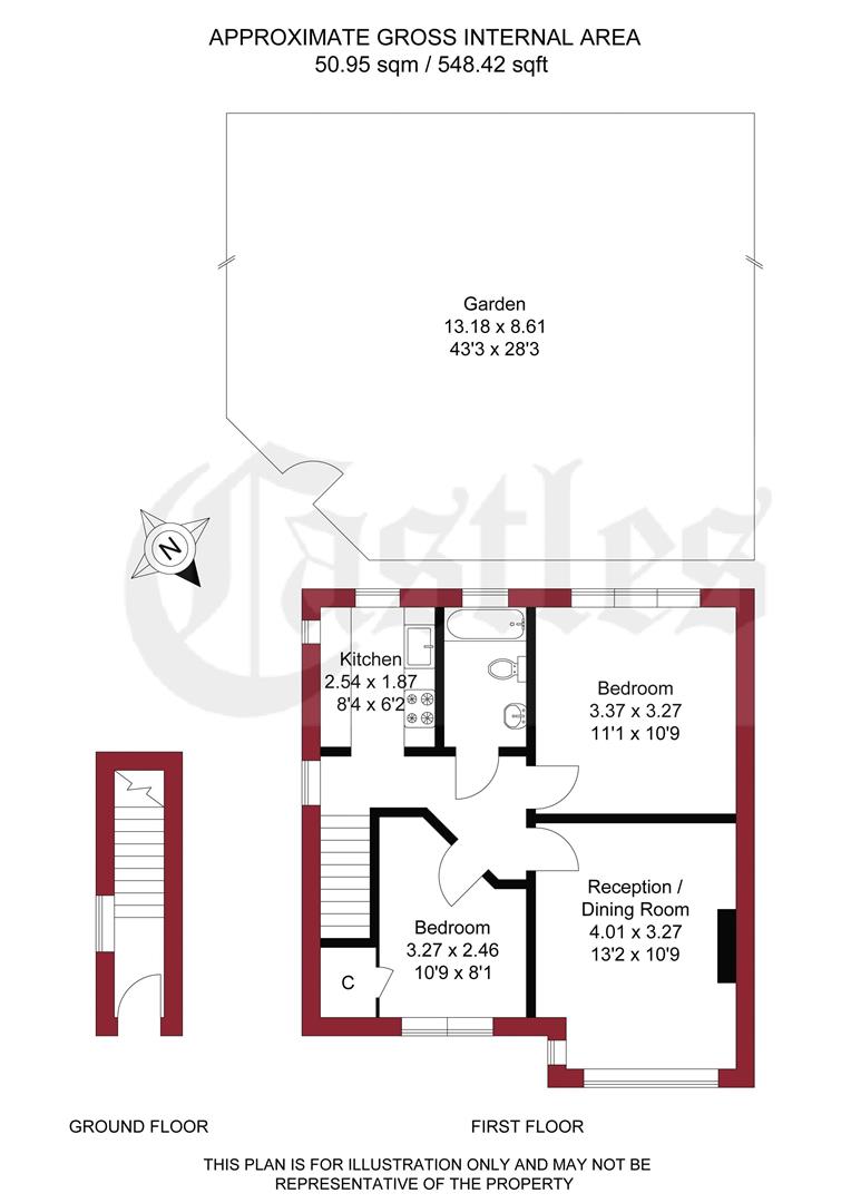
Floorplans
Property Location
Nearest Train Stations
Nearest Airports
- London City Airport (LCY)
- London Stansted Airport (STN)
- London Heathrow Airport (LHR)

