Back
Central Avenue, Enfield
Asking Price £375,000Interested in this Property?
Why not get in touch with our Enfield office?
| Stamp Duty on Property | |
|---|---|
| Purchase Price | £375,000 |
| Stamp Duty (First Time Buyer) | £0 |
| Stamp Duty (Not First Time Buyer)* | £6,250 |
*Additional stamp duty is applicable on buy-to-let investments and second homes
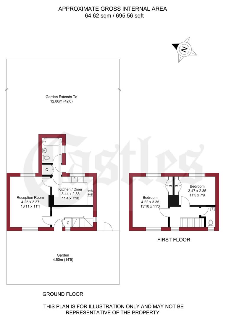
Property Description
- 2 Bedrooms
- 1 Bathrooms
- 1 Receptions
- Freehold
A 2 double bedroom end of terrace house located off Carterhatch Lane in EN1, close to local amenities and schools. The property is offered for sale on a chain free basis and requires some general modernising. This property would suite first time buyers or property investors.
Features include:-
Partial gas central heating,
Double glazing,
Living room,
Kitchen,
Ground floor bathroom,
First floor WC,
Good size rear garden,
Chain free sale
Additional Information
- Partial gas central heating
- Double glazing
- Living room
- Kitchen
- Ground floor bathroom
- First floor WC
- 2 double bedrooms
- Good size rear garden
- Chain free sale
- Council Tax Band: C
Floorplans
Property Location
Nearest Train Stations
Nearest Airports
- London City Airport (LCY)
- London Heathrow Airport (LHR)
- London Stansted Airport (STN)
