Back
Upshire Road, Waltham Abbey
£565,000Interested in this Property?
Why not get in touch with our Waltham Abbey office?
| Stamp Duty on Property | |
|---|---|
| Purchase Price | £565,000 |
| Stamp Duty (First Time Buyer) | £7,000 |
| Stamp Duty (Not First Time Buyer)* | £15,750 |
*Additional stamp duty is applicable on buy-to-let investments and second homes
Property Description
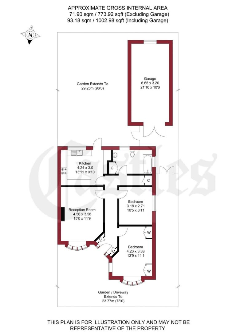
- 2 Bedrooms
- 1 Bathrooms
- 1 Receptions
- Freehold
Upshire Road, EN9 3NP
A well-presented two-bedroom bungalow situated in a popular residential location, offering generous internal space, exceptional parking, and excellent potential for extension (STPP).
The accommodation comprises a welcoming entrance hallway leading to a bright and spacious living room, a fitted kitchen with ample storage and worktop space, two well-proportioned bedrooms, and a family bathroom. The layout is ideal for downsizers, first-time buyers, or those seeking comfortable single-level living.
Externally, the property benefits from extensive off-street parking to the front for five or more vehicles, complemented by a larger-than-usual garage featuring lighting, power sockets, and insulation—a rare and highly desirable addition. There is also a separate 6ft x 8ft storage shed. The outdoor space provides further scope for relaxation, entertaining, or future development, subject to planning permission.
The property offers significant potential to extend and create a larger family home (STPP) and is situated outside the ULEZ zone, making it particularly attractive for commuters.
Conveniently located close to local amenities, shops, and transport links, this bungalow combines practicality, flexibility, and a sought-after setting.
EPC Rating: D
Early viewing is highly recommended to fully appreciate the space, parking, and future potential on offer.
Early viewing is highly recommended to fully appreciate the space, parking, and future potential on offer.
Additional Information
Floorplans
Property Location
Nearest Train Stations
Nearest Airports
- London City Airport (LCY)
- London Stansted Airport (STN)
- London Luton Airport (LTN)

